Hill House – Dom na wzgórzu
Rezydencja na wzgórzu to prawdziwa oaza spokoju, zaprojektowana z myślą o luksusowym wypoczynku w pełnej harmonii z otaczającą przyrodą. Jej położenie na malowniczym wzniesieniu zapewnia spektakularne widoki na okoliczne wzgórza i lasy, co sprawia, że dom idealnie wtapia się w naturalny krajobraz. Wykonana z najwyższej jakości materiałów, rezydencja oferuje trwałość oraz odporność na zmienne warunki atmosferyczne.
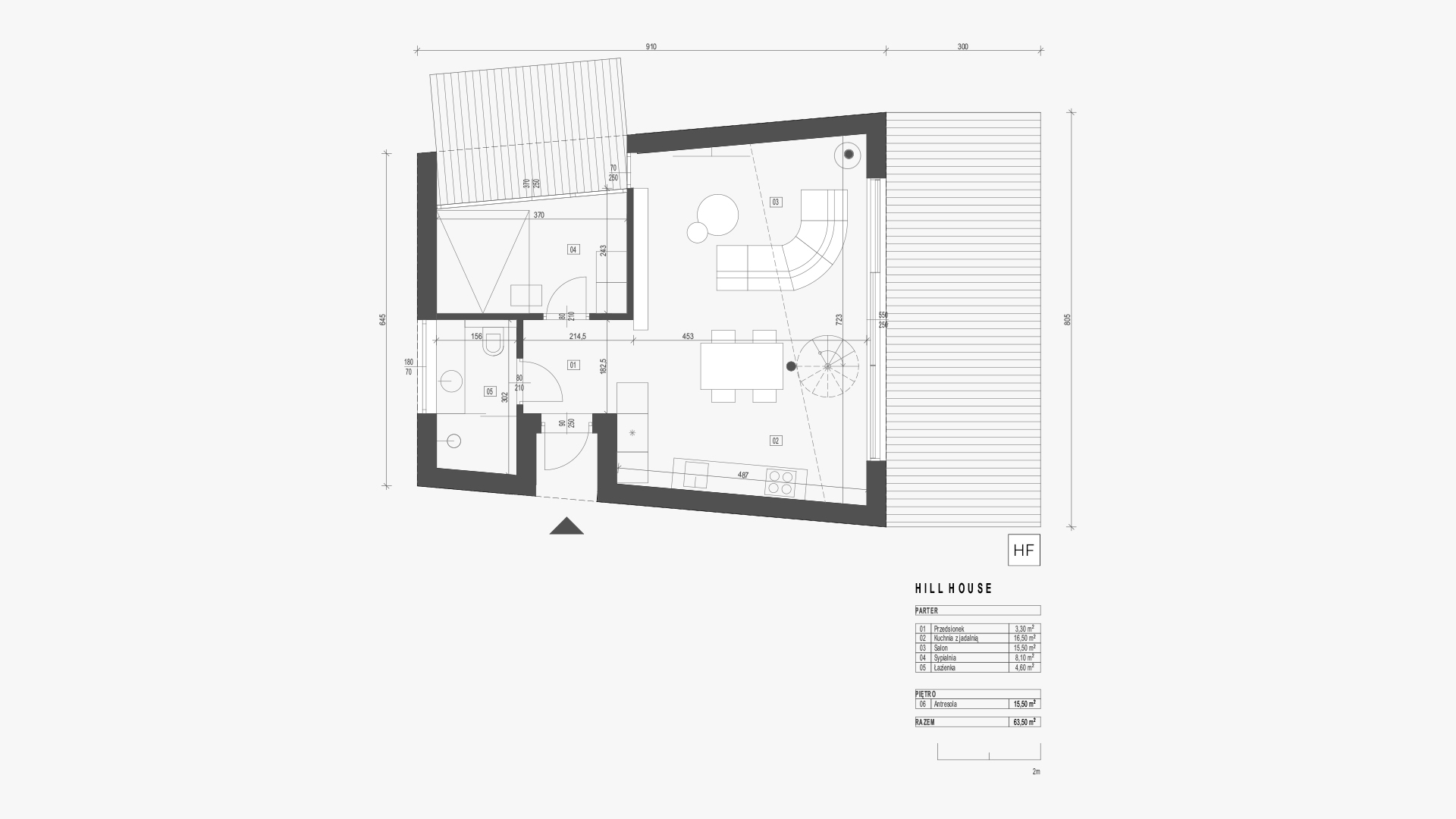
Dom na wzgórzu o powierzchni 63,50 m² został funkcjonalnie zagospodarowany, oferując idealne połączenie przestrzeni mieszkalnych, sypialnianych i rekreacyjnych. Główna część dzienna to przestronny salon, w którym kominek stanowi centralny punkt, sprzyjający spotkaniom z rodziną i przyjaciółmi w chłodniejsze dni. Wielkie, dwukondygnacyjne przeszklenia pozwalają na maksymalne wykorzystanie naturalnego światła.
Rezydencja na wzgórzu – projekt
Dom na wzgórzu został zaprojektowany z myślą o komforcie jego mieszkańców. Każdy element wnętrza przemyślano pod kątem wygody i funkcjonalności. Sypialnie zapewniają prywatność i komfort, a każda z nich posiada dostęp do indywidualnej łazienki, co podkreśla luksusowy charakter tego miejsca. Projekt uwzględnia również liczne przestrzenie do przechowywania, jak szafy i schowki na piętrze, co pozwala na utrzymanie porządku i optymalne wykorzystanie każdego metra kwadratowego.
Cechy charakterystyczne rezydencji na wzgórzu
- Otwarta przestrzeń – Przestronne wnętrza połączone z dużymi przeszkleniami zapewniają uczucie wolności i pełnego dostępu do natury.
- Dwukondygnacyjne przeszklenie – Zapewnia doskonałe doświetlenie wnętrz oraz zapierający dech w piersiach widok na okoliczne wzgórza i lasy.
- Minimalistyczna bryła – Nowoczesny design z wykorzystaniem tradycyjnych materiałów, idealnie wkomponowany w naturalny krajobraz.
Rezydencja na wzgórzu – projekt marzeń
Dom na wzgórzu – projekt, który łączy w sobie funkcjonalność i elegancję, to doskonała propozycja dla osób, które chcą cieszyć się spokojem i pięknem natury, nie rezygnując z wygód nowoczesnego życia. To miejsce, które zapewnia harmonię, komfort oraz wyjątkowe wrażenia estetyczne, idealne dla tych, którzy marzą o domu z duszą, z dala od miejskiego zgiełku.






